STAN VO GRADBA 101m2 VO AERODROM 3-kat KAJ MAJCIN DOM Скопје / Аеродром € 1050 За продавање
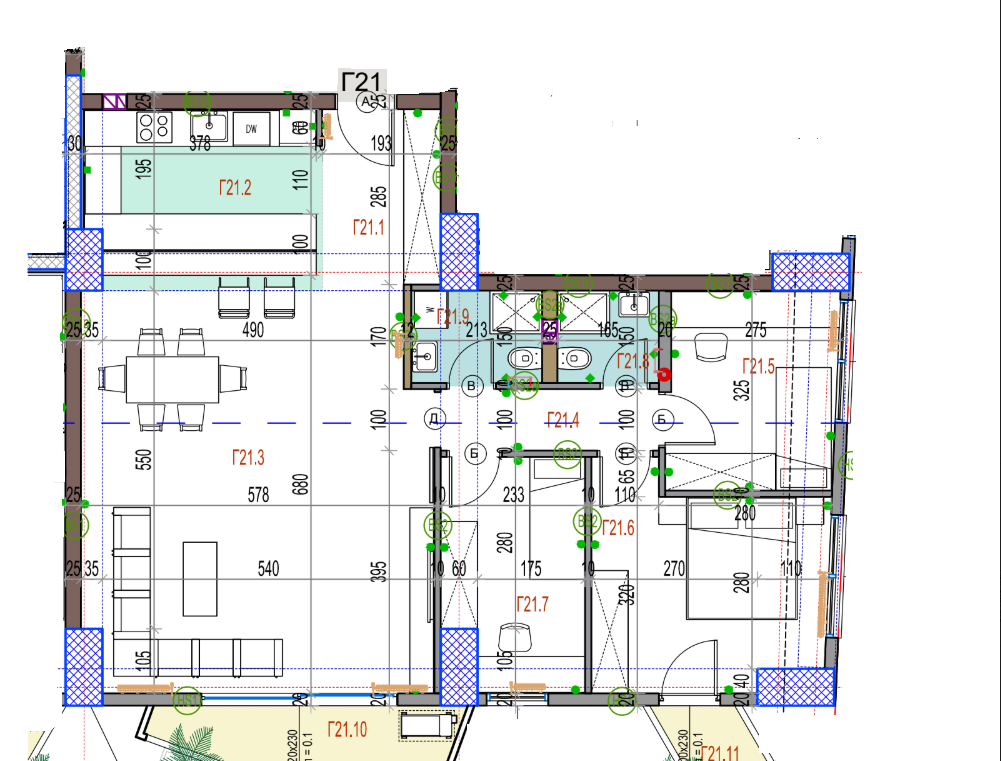
- СТАНОТ ИМА ОДЛИЧЕН РАСПОРЕД, РАСПОЛАГА СО ТРИ СПАЛНИ СОБИ, КУПАТИЛО, ТОАЛЕТ, ОСТАВА, ГАРДЕРОБЕР ДНЕВНА СО ТРПЕЗАРИЈА, КУЈНА И ТЕРАСА ОД ДНЕВНА И ТЕРАСА ОД СПАЛНА.
-Станбената зграда се наоѓа на Бул.Јане Сандански, бб, општина аеродром. Влезовите во станбената зграда се ориентирани на северо-источна страна, кои се пристапни од сервисна улица. Од јужна страна на самиот објект се наоѓа Бул.Јане Сандански, додека од источна страна се наоѓа бул. АСНОМ.
-Фасадните ѕидови се предвидени да бидат од керамички блокови со дебелина од 20 см и соодветна термоизолација од 10 см, со што се запазува високо ниво на енергетска ефикасност на објектот.
-Ѕидовите меѓу станбените единици и станбените единици и ходниците ќе бидат сендвич ѕидови со пожарна отпорност од 2 часа и вкупна д=26см.
-Внатрешните преградни ѕидови треба да бидат изработени од керамички блокови со вкупна д=10 см, со соодветна звучна и топлинска изолација
Самата местоположба на зградава ви дава директна поврзаност со следниве објекти: болница Мајчин Дом, трговски центри: 3 Бисери и Капитол Мол, образовни институции, градинка, основно училиште, спортски центар Јане Сандански итн.
Висината на објектот е П+8+Пк и две подрумски нивоа во кои е решено паркирањето. Влезовите во станбениот дел се од сервисната улица, односно од северо-источна страна. Во секој од влезовите се сместени по два лифтови и скалишно јадро. Објектот располага со 4 влеза.











